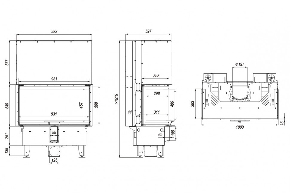
Интересное решение – топка с трехсторонним обзором?! Польская компания Defro Home – INTRA ME C G. Прекрасный обзор со всех сторон при пристенном расположении. Высокое стекло с широким фронтом прекрасно подойдет к проектам современного плана. Топка номинальной мощностью в 13 кВт, разгоняется легко от 5,2 до 12 кВт. Специальная система подъема обеспечивает плавность хода. Длина поленьев при горизонтальной укладке 70 см. Для лучшего отвода тепла на куполе предусмотрены теплоотводящие ребра и теплоотводные каналы, обеспечивающий эффективный съём тепла для конвекционного обогрева помещения. Во всех топках предусмотрена система забора воздуха извне. Это обеспечивает независимость от разряженности воздуха внутри дома и систем вентиляции, которые могут спровоцировать эффект обратной тяги. Черная окантовка стеклокерамики дает вид топки стильным и современным. В зависимости от модели Вы можете использовать стационарную ручку либо съемную.
При планирование покупки Вы заранее можете рассмотреть следующие опции:
Черная футеровка – Keramiton – особо прочная керамика с высокими защитными и теплонакопительными свойствами.
Ручку и петли можно поменять местами, что очень важно при планировке проекта.
Стальную ручку можно заказать в черном цвете, если стальная выбивается из концепции.
Для повышения эффективности работы, Вы можете заказать Thermoblock – система аккумуляции тепла, размещаемая на корпусе и дымосборнике. Для всех тех, кто хочет максимизировать рекуперацию тепла от камина, у нас есть запатентованное накопительное решение, называемое ТЕРМОБЛОК (THERMOBLOCK). Гарантия на топку 5 лет

















Отзывы
Отзывов пока нет.